HideShow

M hotel Administration

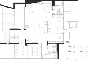
In cooperation with the company Nimo studio d.o.o. we prepared a project to renovate the management of the M Hotel in Ljubljana. The premises are located on the 1st floor between the building of the hotel and the Šiška cinema. The starting point for the design of the offices was an open floor plan, which we have preserved to a greater extent. An undoubted quality was also the large skylight, which gives daylight to rooms that are far from the windows.

  • Client: M hotel d.o.o.
  • Location: Ljubljana, Slovenia
  • Year: 2018
  • Author: Rok Božič, Niki Motoh
  • Author of photos: RB studio
EN